今すぐ無料の会員登録で
閲覧可能物件数が
+75

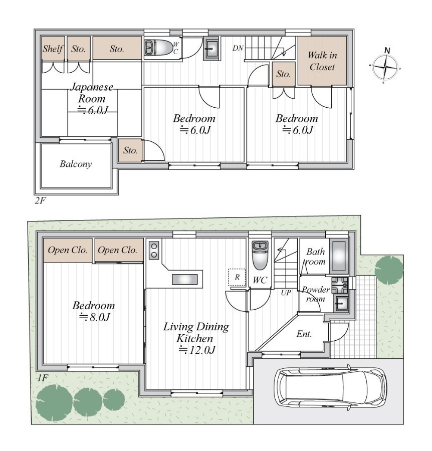
間取図

建物
物件画像
NO IMAGE
周辺環境
QRコードをスキャンして携帯でもご覧になれます。

八潮市八潮8丁目 中古戸建

おすすめコメント

内外装リフォーム物件で、すぐに新生活をスタートできる4LDK中古戸建です。水まわり設備も一新され、清潔感あふれる住空間に生まれ変わりました。ご家族それぞれのプライベート空間を確保できる間取りで、収納も豊富。落ち着いた住環境で、快適な暮らしを実現できます。

中古一戸建て
2,780万円
    埼玉県八潮市八潮8丁目

    つくばエクスプレス 八潮駅 徒歩 22分

    NEW現地見学会おすすめ会員限定
    間取り
    4LDK
    築年月
    1987年05月完成
    土地面積
    100.02㎡
    建物面積
    98.73㎡
    今すぐ会員登録する資料請求お気に入りに追加
    お問い合わせ先: 048-998-6331
    電話でお問合せする
    物件情報
    名称
    八潮市八潮8丁目 中古戸建
    価格
    2,780万円(税込)
    リフォーム
    あり [施工時期] 2025年10月 [内容] ・外壁塗装 ・給湯器交換 ・壁紙貼替 ・床材交換 ・畳表替え ・襖交換 ・浴室リフォーム ・キッチン、洗面化粧台、シャワートイレ新品交換
    所在地
    埼玉県八潮市八潮8丁目
    交通

    つくばエクスプレス 八潮駅 徒歩 22分

    間取り
    4LDK
    建物現況
    完成済
    建物面積
    98.73㎡
    土地面積
    100.02㎡
    地目
    宅地
    土地権利
    所有権
    築年月
    1987年05月完成
    建物構造
    木造(W)
    建物階建
    2階建
    設備・条件
    ガス:都市ガス 汚水:公共下水(使用可) 雑排水:公共下水(使用可) 水道:公営水道(使用可) 洗濯機置場:室内
    都市計画
    市街化区域
    用途地域
    第一種中高層住居専用地域
    建ぺい率/容積率
    60%/200%
    セットバック
    なし
    私道負担
    なし
    接道状況
    一方 東:幅員9.0m公道
    引渡時期
    相談
    学区

    八幡小学校 約500m

    八幡中学校 約1100m

    物件情報更新日
    2025年10月23日(物件情報更新日より14日以内に更新)
    物件コード
    1252
    取引態様
    仲介
    今すぐ会員登録する資料請求お気に入りに追加
    お問い合わせ先: 048-998-6331
    電話でお問合せする
    三共コスモス株式会社
    三共コスモス株式会社
    〒340-0815
    埼玉県八潮市八潮2丁目1-30
    048-998-6331
    営業時間:9:00~18:00 

    条件がよく似た物件

    外観
    外観
    間取図/区画図
    間取図
    間取図/区画図
    間取図
    外観
    スマートフォン版の表示に切り替える