2026年4月撮影 完成外観
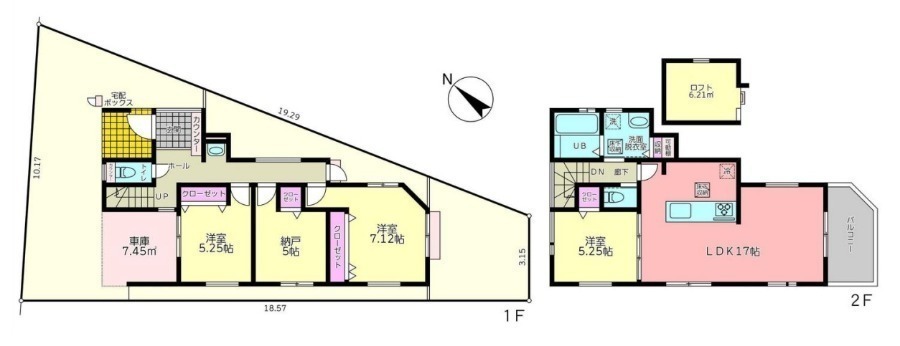
間取図
2階リビング
17帖ある広々リビング
モニター付きインターホン
給湯器操作パネル
【上置棚】取り付け済み!
3口IHクッキングヒーター
浄水器付きステンレスシンク
食洗機
洗面室全体
洗面化粧台
可動棚付き収納 洗剤等のストックやタオル置き場に◎
浴室乾燥機操作パネル
1階のトイレ 扉付収納棚あり
2階のトイレ 扉付収納棚あり
1階洋室【7.12帖】 入口側から撮影
1階洋室【7.12帖】 窓側から撮影
1階洋室【7.12帖】にあるクローゼット
1階洋室【5.25帖】 入口から撮影
1階洋室【5.25帖】 窓側から撮影
1階洋室【5.25帖】にあるクローゼット
2階洋室【5.25帖】 入口から撮影
2階洋室【5.25帖】 窓側から撮影
2階洋室【5.25帖】にあるクローゼット
1階にある納戸【5帖】
1階納戸にあるクローゼット
1階納戸クローゼット内にある床下収納
1階玄関横の洗面台 帰宅後2階に上る前に手を洗えます!
1階廊下突き当りの勝手口
リビング上のロフト
ガーデニングに◎
南面バルコニーで陽当たり抜群です!
内側
シューズボックス 大容量で家族の靴もすっきり片付きます!
外側
ポスト一体型宅配ボックス
駐車スペース


全居室に収納を備えた、ゆとりある3SLDKの新築戸建てです。
開放感のある2階リビングは、自然光がたっぷり入り心地よい空間。
ロフト付きで、趣味スペースや季節物の収納にも便利です。
機能性と快適さを兼ね備えた、新生活にぴったりのお住まいです。
東武伊勢崎・大師線 草加駅 バス 7分 「八幡小学校前」 停歩 6分
東武伊勢崎・大師線 草加駅 バス 7分 「八幡小学校前」 停歩 6分
八幡小学校 約328m
八幡中学校 約573m